Substantial 1930’s Semi Detached Family Home | Approx. 2,800 Sq Ft | Four Bedrooms | Three Reception Rooms | Kitchen/Breakfast Room & Family Space | Garage & Off Street Parking.
This delightful and substantial 1930’s semi-detached family home, on the market for the first time in 51 years, is ideally positioned on The Drive, one of Gosforth’s most prestigious residential streets, located within the Conservation Area and within easy reach of Gosforth High Street, the Town Moor and excellent schools and local transport links.
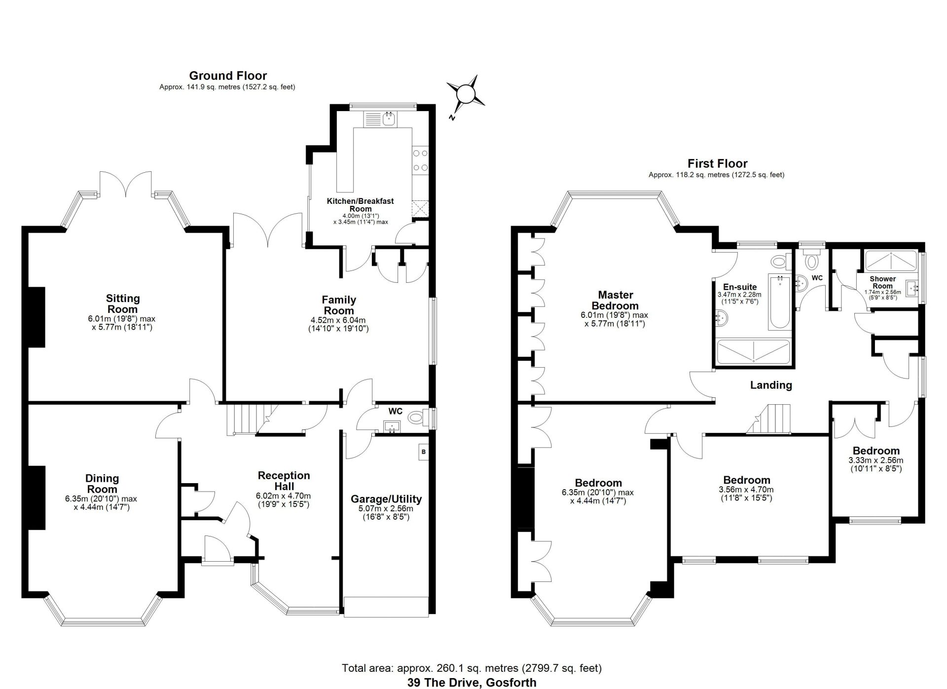
Offering generous and characterful accommodation extending to approximately 2,800 sq.ft, the property provides well-proportioned, light-filled and flexible living space suited to family life.
The ground floor, with original oak parquet flooring throughout, briefly comprises an entrance lobby leading to a generous reception hall with access to a ground floor WC. The principal reception room is positioned to the rear of the house with bay window and patio door leading to the exceptional south facing garden, whilst a separate dining room also benefits from a bay window and private outlook over the front garden. To the rear, a spacious family living-cum-dining room connects through to the kitchen with breakfast bar, creating a practical layout for everyday living. This room also leads out onto the paved patio terrace of the south facing garden, creating a lovely exterior link to the main living space and a perfect setting for entertaining in the summer months. The kitchen is fitted with a high-quality, maple wood cabinetry range by Newcastle Furniture Company, which provides ample storage and workspace. From the ground floor hallway there is also internal access to the garage-cum-utility.
To the first floor, a wide landing leads to four double bedrooms. The principal bedroom is a particularly generous size and benefits from modern fitted wardrobes and an en-suite bathroom with white contemporary suite and travertine tiling, both with views over the stunning south-facing garden. A second large double bedroom sits to the front, with two further bedrooms offering flexibility for family, guests or home working. There is also a recently fitted walk-in shower-room and a separate WC. The property also benefits from a generous loft that has potential to extend, subject to usual planning consents.
Externally, the property has a pillared entrance leading to the front driveway providing off-street parking and access to the attached garage. The front garden offers excellent privacy, with mature shrubs and border planting.
The rear garden is an outstanding feature of the property and is understood to be one of the larger plots on The Drive, with a site extending to just under 0.2 acres. Enjoying a desirable south facing aspect, it is mainly laid to lawn with mature planting and established borders, offering a high degree of privacy. The garden has been professionally landscaped to create a fantastic central pergola with trailing climbers and this feature subdivides the expansive lawn to create two very distinct areas, with the foot of the plot becoming a ‘secret garden’, replete with pond, and a fantastic quiet spot for evening sun. The size and orientation make it ideal for families and for those who enjoy outdoor space, with plenty of scope for extending the existing rear accommodation, also subject to the usual planning consents.
The property presents a rare and excellent opportunity for a buyer to personalise a home of this scale and quality in a highly desirable central Gosforth location. Early viewing is recommended.
Services: Mains electric, gas, water and drainage | Tenure: Freehold | Council Tax: Band F | Energy Performance Certificate: Rating D