Stunning Detached Family Home Boasting Five Bedrooms, Four Bathrooms, Two Generous Receptions Rooms, Open Plan Kitchen/Diner, Utility, Garage, Driveway for Two Cars & Substantial South East Facing Garden!
Built in 2024 by Medburn Homes, this stylish property has been further upgraded to an excellent standard throughout, with well proportioned accommodation set over two floors.
Medburn, a small rural hamlet, is ideally located for easy access into Ponteland village where there is a good range of local amenities including cafes, bars/restaurants and shops, as well as excellent local schooling for all ages. There is also a Waitrose & Sainsburys supermarket, range of sports clubs and a leisure centre.
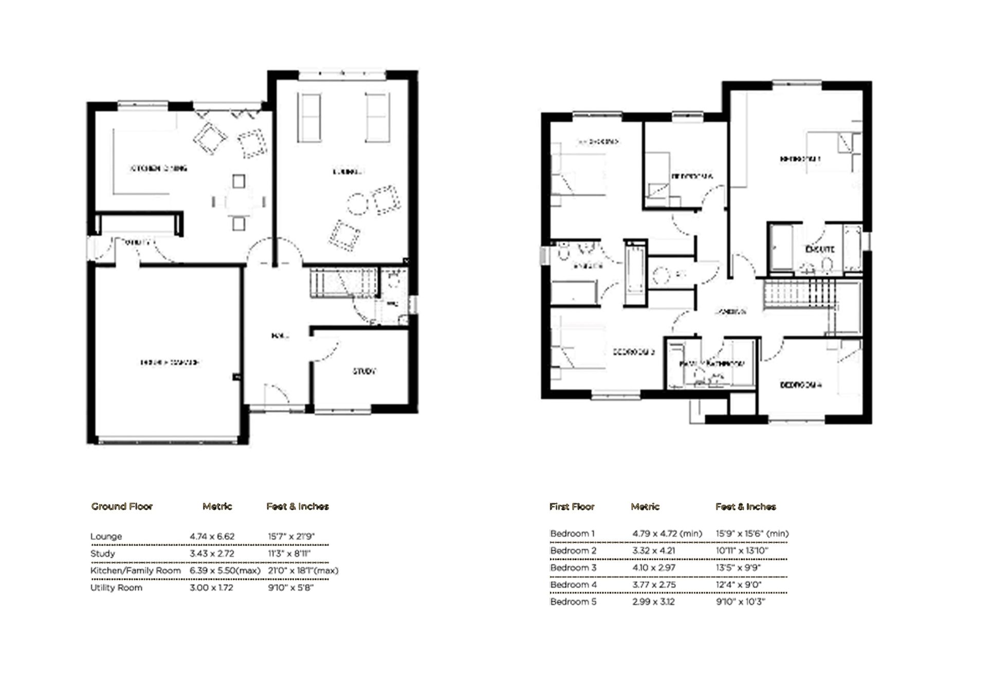
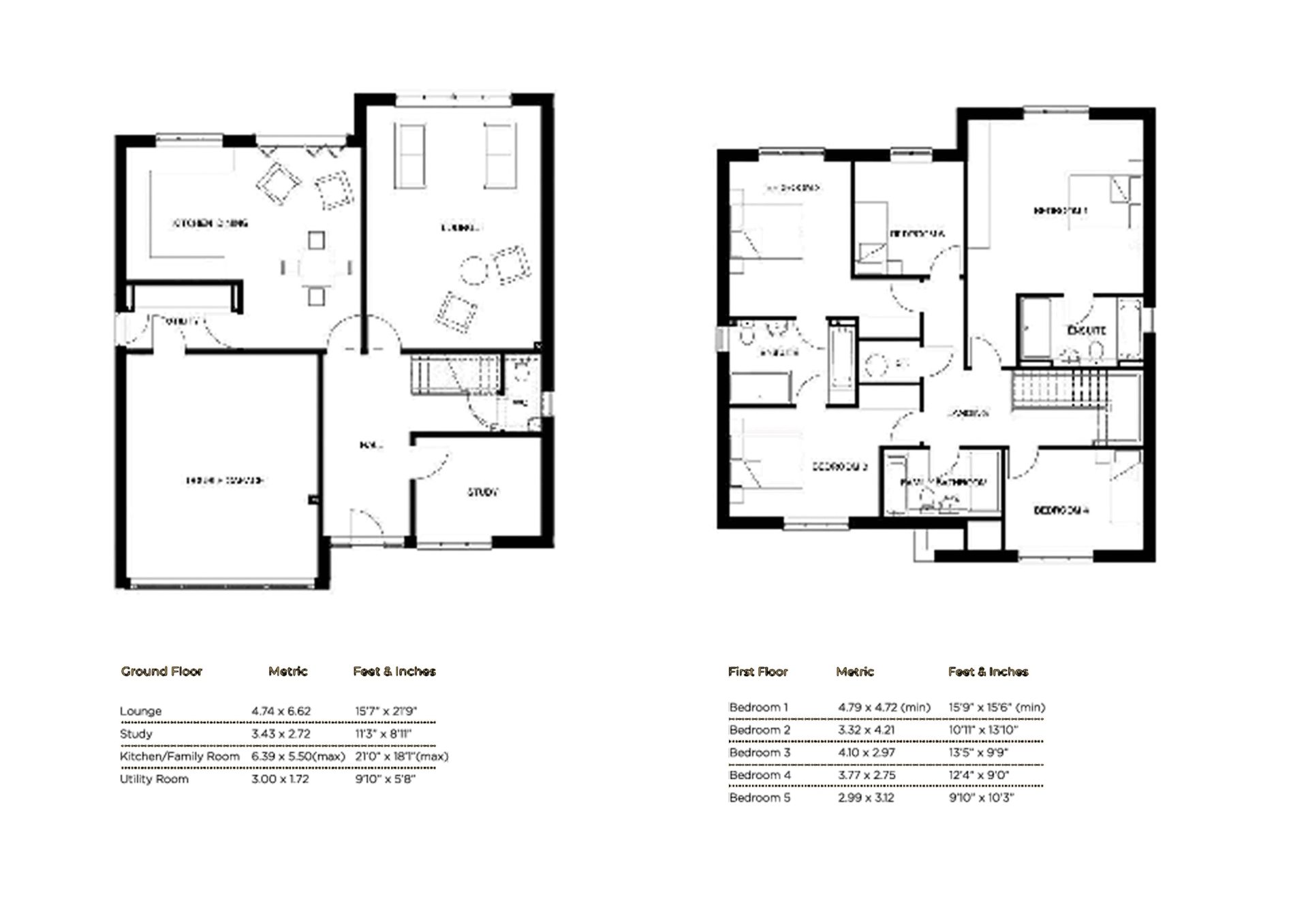
Boasting in excess of 2,320 sq/ft, the internal accommodation comprises: Entrance hallway with staircase leading up to the first floor | Ground floor WC | Front snug/dining room | Substantial rear sitting room with views over the gardens and newly installed surround sound system | Impressive open plan kitchen/diner with direct access onto the gardens | The kitchen enjoys a range of modern cabinetry/worktops, integrated appliances throughout and breakfast bar | Utility room with side access | Integral double garage.
The staircase then leads up to the first floor landing and onto five bedrooms | The principal bedroom offers a large double room with bespoke fitted wardrobes and immaculate ensuite bathroom with four piece suite | Bedroom two are three are further generous double rooms, share access onto a Jack & Jill ensuite bathroom | Bedroom four is also double room and bedroom five is a smaller double room with fitted wardrobes | Family bathroom with equally as impressive four piece suite.
Externally, the property is approached via a block paved driveway for off street parking for two vehicles | To the rear is a substantial south east facing rear garden, which is laid predominantly to lawn with fenced borders.
Immaculately presented throughout, early viewings are strongly encouraged to truly appreciate the size and quality of accommodation on offer at this wonderful family home!
Services: Mains gas, electricity, water & drainage | Tenure: Freehold | Council Tax: Band G | Energy Performance Certificate: Rating C