A stylish and extended four bedroom detached house, located to the head of a small cul de sac in this popular modern development in Embleton, with an attractive west facing rear garden, driveway parking for three cars and a detached single garage, divided into a bike/garden store and home office/studio/gym – the house has been substantially extended with a fabulous Orangery and reconfigured to create a utility room a ‘Jack and Jill’ ensuite to the first floor. NO UPWARD CHAIN
The impressive family home was built by Cussins, a ‘Lily design’, which has been modified
and extended creating a fabulous open plan kitchen/living room and dining room
area with an Orangery style extension (Pennine Windows) to the rear opening to the garden.
In addition to the large extension, the kitchen has also been upgraded with more cabinets for storage, and the creation of a
useful utility room off the kitchen. To the first floor, there has been a reconfiguration of the
bedroom designs to create a ‘Jack and Jill’ ensuite shower to bedrooms one and two, and
built in wardrobes in bedrooms one and four.
Additional works include; wood panelling to the hallway, chimney breast created in the sitting room, cast iron radiators added, and double door built in wardrobes created in bedroom one and four – the house benefits from a 10 year NHBC guarantee.
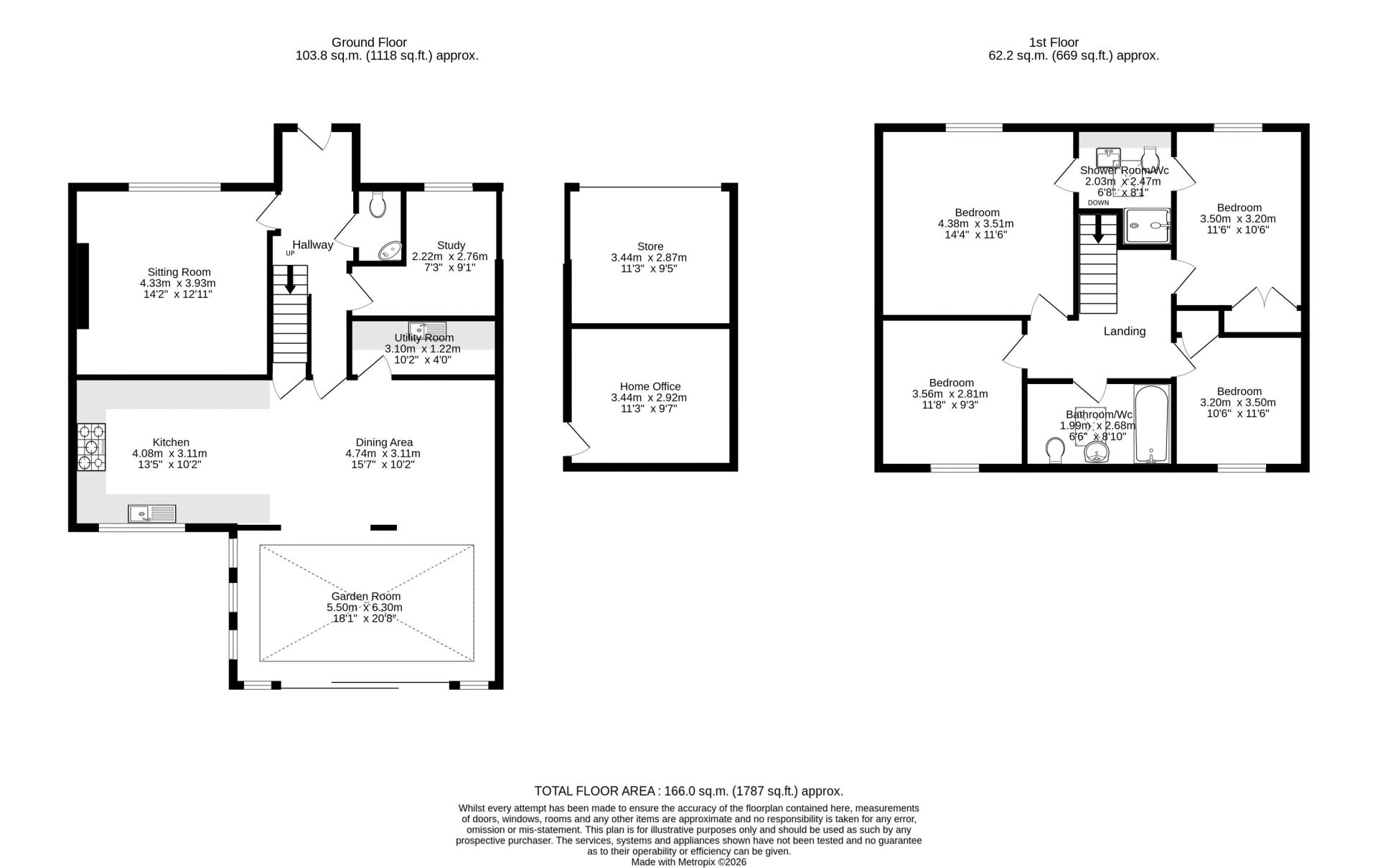
Ground floor – Reception hallway with attractive wood panelling | Ground floor WC | Sitting room with a window to to the front and central fireplace | Magnificent open plan & versatile living space, incorporating a kitchen and dining area, and superb living area in the Orangery | The superb kitchen is fitted with a range of cabinets, with space for an American style fridge/freezer and integrate appliances; 4 ring gas hob, ‘Elica’ double oven, wine fridge, and dishwasher – the kitchen gives access to a large understairs storage cupboard | Impressive Orangery ( Pennine Windows) with excellent natural light from the roof light and large windows and patio doors, to three elevations overlooking the garden | Utility room fitted with cabinets, and plumbing for a washing machine.
First floor – First floor landing with a cupboard housing the water tank | Double bedroom one with a new double door built in wardrobe | Jack and Jill ensuite shower/WC | Double bedroom two with space for bedroom furniture and a door to the jack and jill shower room | Double bedroom three with built in wardrobes | Double bedroom four with a new double door built in wardrobe | Family bathroom with a bath with shower over, WC and wash hand basin.
Externally – Lawned front garden with box hedging and a generous west facing rear garden and paved patio terrace | Large block paved driveway for three cars | Single detached garage – subdivided into a bike/garden store to the front and to the rear into a versatile gym/studio/home office with a boarded loft for storage.
Agents Note: Occupancy Restriction – Must be a principal residence in perpetuity.
Embleton village, located on the stunning Northumberland coast, has a range of local amenities including pubs/hotels, an excellent village shop, historic Church, village hall, petrol station/garage and village First School – the Dunstanburgh links Golf Course is located on the coast with a Clubhouse and access to miles of sandy beaches, leading to Low Newton to the north and Dunstanburgh Castle and Craster to the south.
Services: Mains Electric, Gas, Water & Drainage | Gas Central Heating | Tenure: Freehold | Council Tax: Band E | EPC: C